Меню
ЗакрытьСокольники
Продажа
$75000 ≈ $1102.94 / м²
Телефон менеджера
№ объекта
RE-127876
Комнат
2
Площадь
68 / 36 / 20 м²
Город
Харьков, Харьковская обл.
Район
Сокольники
Адрес
Профессорская ул., 12
Этаж
3
Этажность
16
Email
На карте
Фотогалерея Смотреть все фото
Об объекте
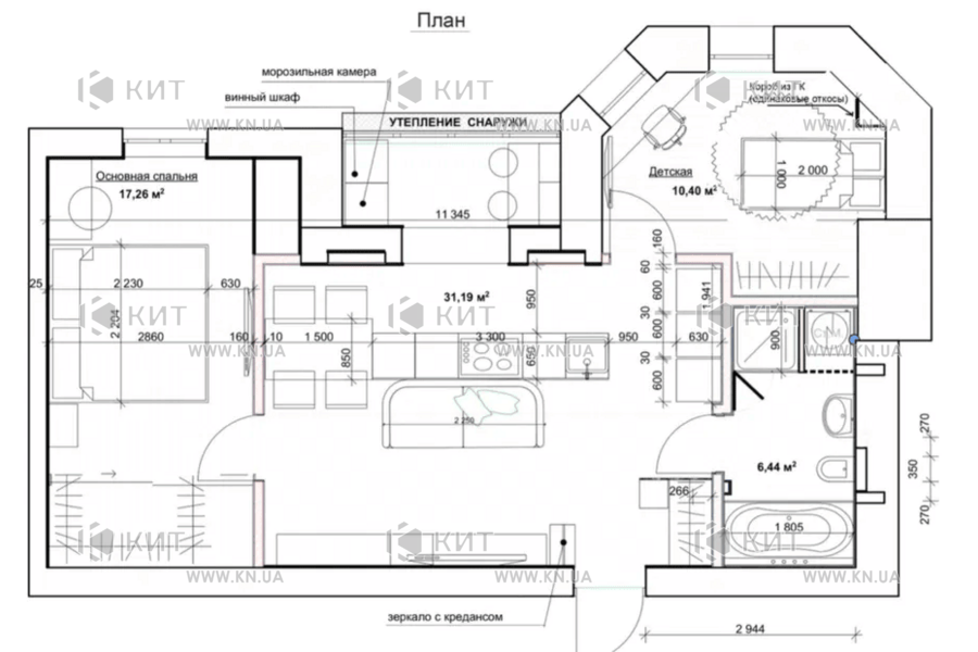
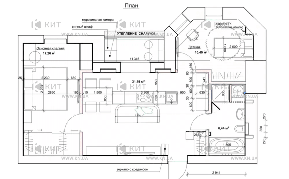
Продается 2-комнатная квартира, Сокольники, Профессорская ул. 12, м. Ботанический сад, ЖК Сокольники. Общая площадь - 68 м²; 3 этаж 16-этажного дома.
Формат квартиры: кухня-гостиная, спальня, детская, санузел, гардероб, лоджия.
В квартире: капитальный ремонт, авторский ремонт, МПО, новые коммуникации, утепленный фасад.
Дополнительные бонусы: мебель, техника, холодильник, посудомоечная машина, стиральная машина, кондиционер, теплый пол.





