Меню
ЗакрытьПродажа
$45000 ≈ $667.66 / м²
Телефон менеджера
№ объекта
RE-110693
Комнат
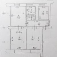
3
Площадь
67.4 / 46.5 / 7.2 м²
Город
Харьков, Харьковская обл.
Район
ЮЖД, Центр. рынок
Адрес
Евгения Котляра (Красноармейская) ул., 8/10Г
Этаж
3
Этажность
7
Email
На карте
Фотогалерея Смотреть все фото
Об объекте
Продам 3-х комнатную квартиру на Южном вокзале, ул. Евгения Котляра (Красноармейская), до метро 3 минуты пешком. 3 этаж 7-этажного кирпичного дома. Общая площадь 67 м2, жилая 46 м2, кухня 7 м2. Высокие потолки, толстые кирпичные стены, железобетонные перекрытия, лифт. Жилое состояние. Большая комната - проходная. Рядом вся необходимая инфраструктура: магазины, супермаркет АТБ, рынок, гимназия, детские сады, остановки общественного транспорта.










