Меню
ЗакрытьЛевада
Продажа
$48800 ≈ $697.14 / м²
Телефон менеджера
№ объекта
RE-116327
Комнат
2
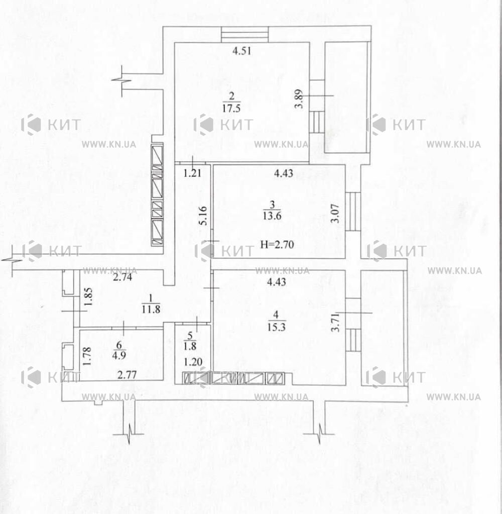
Площадь
70 / 31 / 15.2 м²
Город
Харьков, Харьковская обл.
Район
Спортивная, Гагарина, Защитников
Адрес
Елизаветинская ул., 3А
Этаж
16
Этажность
16
Email
На карте
Фотогалерея Смотреть все фото
Об объекте
Продам 2комн. квартиру в новострое ЖК Левада-1 - 3 минуты ходьбы от м. Гагарина. Дом сдан, коммуникации подключены, заселен. 16/16 этаж, сверху полноценный технический этаж. Общая площадь квартиры 70 м2, жилая 31 м2, кухня 15 м2. В квартире 2 балкона, комнаты раздельные. Комфортная и практичная планировка с большой кухней. Главные наши преимущества: Дом находится в 1 минуте ходьбы от метро пр. Гагарина, во всех квартирах горизонтальная разводка отопления с возможностью установки счетчика на отопление на квартиру, дом из белого кирпича, утеплен минеральной ватой и пенопластом. Рядом вся необходимая инфраструктура: метро, остановка общественного транспорта, супермаркеты, школы, детские сады, автовокзал, до центра 10 минут пешком!







