Меню
ЗакрытьМаршал
Продажа
$37000 ≈ $1000 / м²
Телефон менеджера
№ объекта
RE-120926
Комнат
1
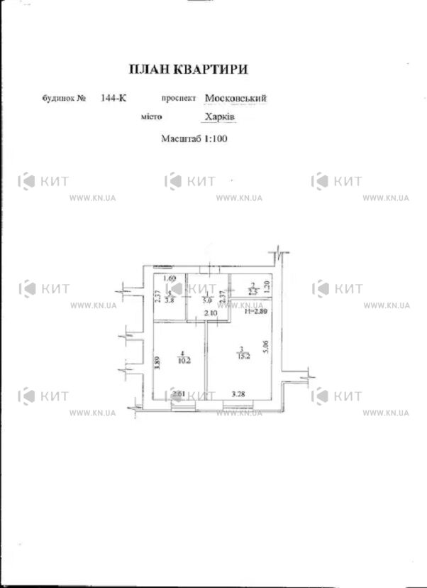
Площадь
37 / 15.2 / 10.2 м²
Город
Харьков, Харьковская обл.
Район
Новые дома
Адрес
Героев Харькова (Московский) пр., 144К
Этаж
1
Этажность
10
Email
На карте
Фотогалерея Смотреть все фото
Об объекте
Продам 1-комнатную квартиру на Новых домах в новострое ЖК "Маршал" на 1 этаже 10-тиэтажного дома. Общая площадь -36.7м2, жилая -15.2м2., кухня -10.2м2. Квартира в строительном состоянии, без балкона, окна выходят на парковку. В квартире автономное газовое отопление. Закрытая территория. Прекрасный район города, качественный дом от хорошего застройщика. Развитая инфраструктура, вблизи школы, детские сады, рынок, супермаркеты АТБ, РОСТ, рядом метро.




