Меню
ЗакрытьКонтиненталь
Продажа
На карте
Фотогалерея Смотреть все фото
Об объекте
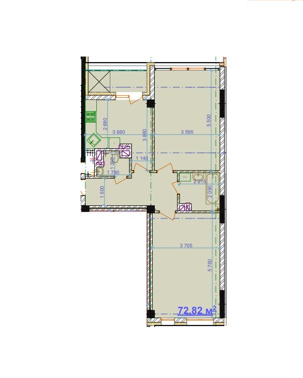
Продажа двухкомнатной квартиры в ЖК "Континенталь" на Салтовке, м. Студенческая, по ул. Валентиновская, 522 м-р. Квартира находится на 10 этаже 17 этажного дома. Общая площадь 72 м2, жилая 43 м2, кухня 11 м2. Состояние строительное. Без несущих конструкций, двухсторонняя, 2 санузла, выход на лоджию из кухни. Формат квартиры: две большие комнаты и кухня. Монолитно-каркасная технология строительства, наружные стены - красный кирпич, утеплитель - минеральная вата. В доме автономное отопление. В квартире металлопластиковые окна, монтаж системы отопления с установкой радиаторов, входные металлические двери, подводка водоснабжения и канализации в санузлах, ввод электропроводки в квартиру, установка электросчетчика, возможность установки счетчика тепла на квартиру. Предусмотрен подземный и наземный паркинги, уютная закрытая территория с детской площадкой. Район зелёный и обжитый. В нескольких минутах ходьбы находится сосновый бор и городской пляж. Рядом с домом полностью вся инфраструктура - несколько школ, детские сады, спортивные залы, магазины, аптеки, родник с облагороженной территорией, недалеко гаражный кооператив. Остановка трамвая и маршруток рядом с домом, до метро 2 минуты.


























