Меню
ЗакрытьЧеремушки
Продажа
На карте
Фотогалерея Смотреть все фото
Об объекте
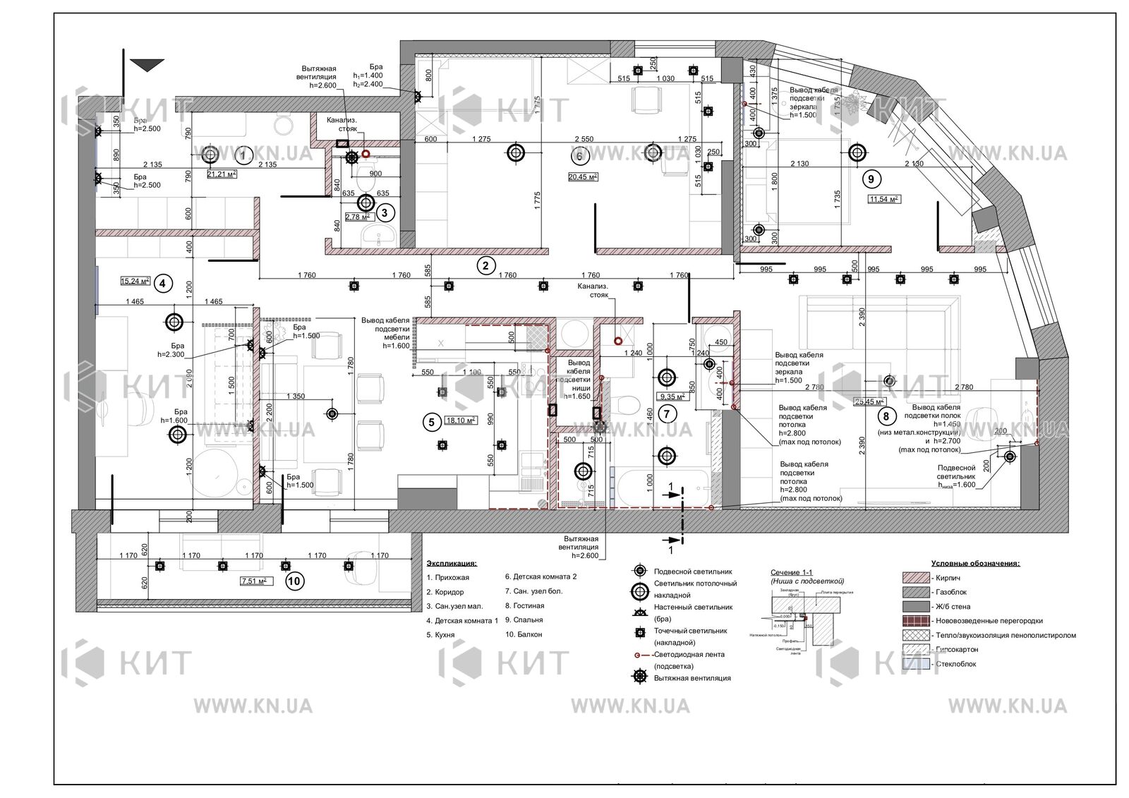
Продаётся просторная 4 комнатная квартира общей площадью 125 м² в жилом комплексе "Черемушки" на проспекте Победы, расположенном в Шевченковском районе, Алексеевка. Удобное месторасположение позволяет быстро добираться до метро "Победа", находящегося в пешей доступности.
Квартира находится на 10 этаже в 18-этажном доме и предлагает жилую площадь в размере 72.7 м², а также просторную кухню площадью 18.1 м². В настоящее время квартира находится в строительном состоянии с выполненными черновыми работами, включающими машинную штукатурку, замену радиаторов отопления, разводку электрики, и установку двух инсталляций в двух туалетах. Установлены магистрали под кондиционеры. Преимущество квартиры - вид с двух сторон: на уютный двор и на проспект.
Внутри квартиры предусмотрено три комнаты и новые полипропиленовые трубы отопления. Также имеется балкон, который соединяет кухню и одну из комнат, создавая удобное пространство для отдыха и общения. Квартира уже имеет готовый дизайн-проект, что предоставляет возможность реализовать свои идеи без лишних хлопот.
В этом ЖК установлен генератор, который при отсутствии света от города работает для жителей.
Рядом с домом развитая инфраструктура, включающая в себя детские сады, школы, супермаркеты и остановки общественного транспорта, что делает это место удобным для комфортной жизни.





























