Меню
ЗакрытьКристалл
Продажа
$65000 ≈ $902.78 / м²
Телефон менеджера
№ объекта
RE-126251
Комнат
2
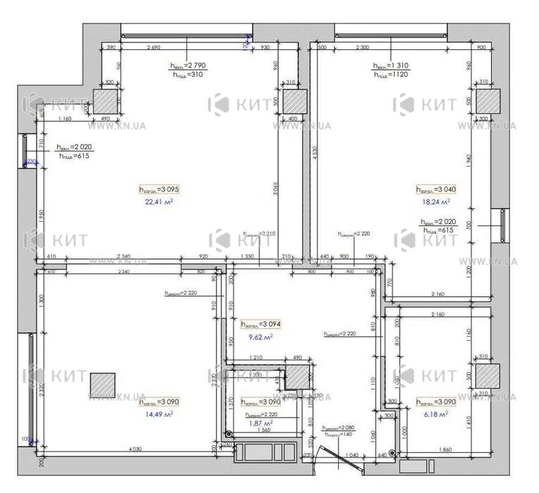
Площадь
72 / 40 / 14 м²
Город
Харьков, Харьковская обл.
Район
Спортивная, Гагарина, Защитников
Адрес
Молочная (Кирова) ул., 52
Этаж
7
Этажность
16
Email
На карте
Фотогалерея Смотреть все фото
Об объекте
Продам 2 комнатную квартиру в Новострое ЖК "Кристалл". Дом бизнес класса, расположен по ул. Молочная (бывшая ул. Кирова), метро «Проспект Гагарина» 10 минут. Квартира расположена на 7-ом этаже 16-этажного дома. Общая площадь квартиры 72м2, жилая 40 м2, кухня 14 м2. Дом сдан, все коммуникации подключены. Жилой комплекс "Кристалл" - это двухсекционный 15-этажный жилой дом со встроенными помещениями общественного назначения и подземным гаражом. Рядом с домом находится супермаркет "Таврия В", магазины, предприятия бытового обслуживания, общественного питания, отделения банков. В пешей доступности - детские садики, гимназии, "Металлист".








