Меню
ЗакрытьСпортивный
Продажа
$51900 ≈ $760.66 / м²
Телефон менеджера
№ объекта
RE-127394
Комнат
2
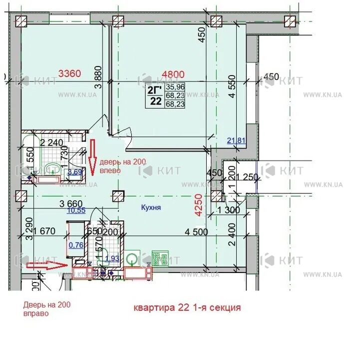
Площадь
68.23 / 42 / 29.57 м²
Город
Харьков, Харьковская обл.
Район
Спортивная, Гагарина, Защитников
Адрес
Братьев Гипиков (Оренбургская) ул., 9
Этаж
5
Этажность
10
Email
На карте
Фотогалерея Смотреть все фото
Об объекте
Продается 2-комнатная квартира, Гагарина, Спортивная, Защитников Украины, ул. Братьев Гипиков (Оренбургская). м. Спортивная в 2х минутах ходьбы просто под домом. ЖК Спортивный. Общая площадь - 68.23 м²; 5 этаж 10-этажного дома.
Формат квартиры: кухня-гостиная, детская, спальня, санузел, ванная комната, балкон.
В квартире: строительное состояние, МПО, новые коммуникации, утепленный фасад, розведена проводка.
Установлено: счётчик на воду, счётчик на отопление.
Преимущества этого дома: подземный паркинг, закрытая территория, охрана.
Рядом вся необходимая инфраструктура: детский сад, школа, метро, остановка общественного транспорта, рынок, ТЦ, супермаркет, парк.










