Продажа квартиры Харьков, Клочковская, 20м²

Ботанический сад
Воробьевы Горы на Полях
Продажа
$22000$1100 / м²
Телефон менеджера

№ объекта
RE-127944
Комнат
1
Площадь
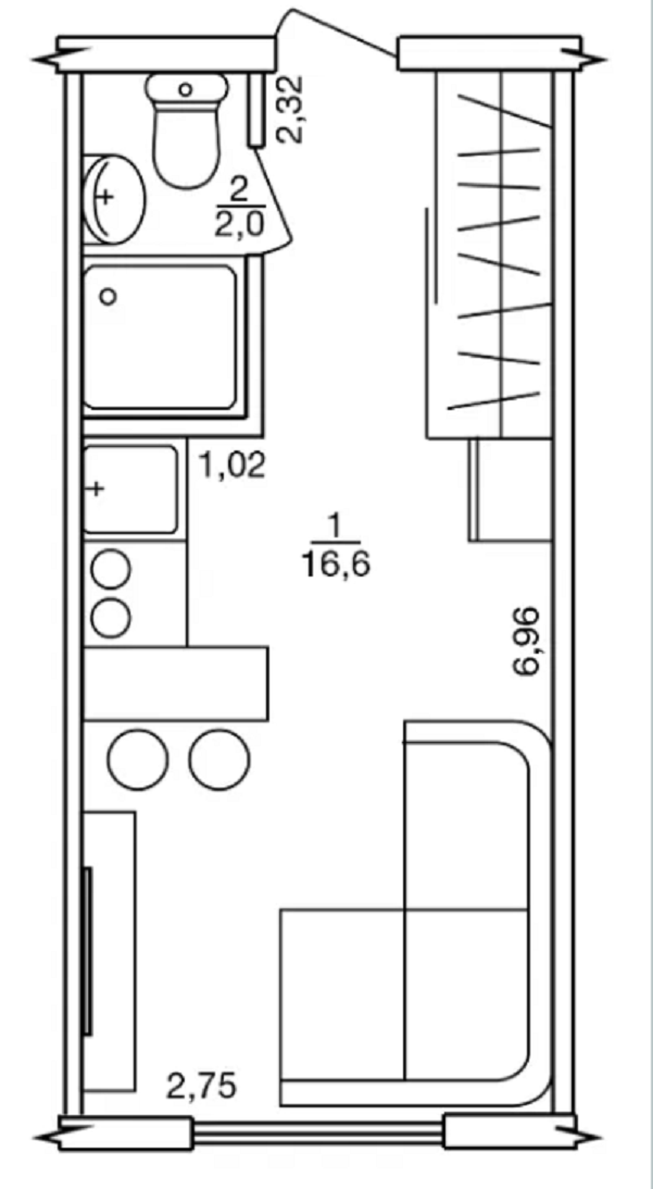
20 / 16 / 4 м²
Город
Харьков, Харьковская обл.
Район
Клочковская
Адрес
Весёлая ул., 24
Этаж
5
Этажность
9

На карте


Об объекте

Доступно по программе єВідновлення. Продается 1-комнатная квартира, Клочковская, Весёлая ул. 24, м. Ботанический сад, ЖК Воробьевы Горы на Полях. Общая площадь - 20 м²; 5 этаж 9-этажного дома.
Формат квартиры: кухня-гостиная, санузел.
В квартире: капитальный ремонт.
Установлено: счётчик на воду.
Дополнительные бонусы: мебель, техника.
Преимущества этого дома: паркинг, закрытая территория, охрана, детская площадка, собственная котельная.
Рядом вся необходимая инфраструктура: детский сад, школа, метро, остановка общественного транспорта, супермаркет.