Меню
ЗакрытьВоробьевы Горы на Полях
Продажа
$10000 ≈ $500 / м²
Телефон менеджера
№ объекта
RE-128027
Комнат
1
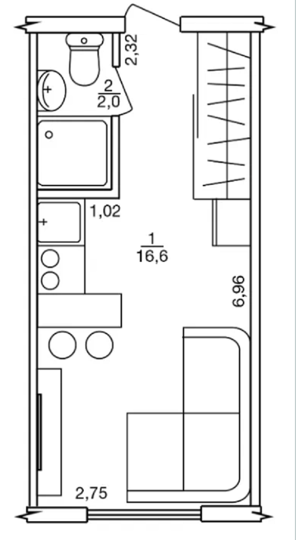
Площадь
20 / 16 / 4 м²
Город
Харьков, Харьковская обл.
Район
Клочковская
Адрес
Весёлая ул., 24
Этаж
8
Этажность
9
Email
На карте
Фотогалерея Смотреть все фото
Об объекте
Продается 1-комнатная квартира, Клочковская, Весёлая ул. 24, м. Ботанический сад, ЖК Воробьевы Горы на Полях. Общая площадь - 20 м²; 8 этаж 9-этажного дома.
Формат квартиры: кухня-гостиная, санузел.
В квартире: черновые работы, МПО, новые коммуникации.
Установлено: счётчик на воду.
Преимущества этого дома: закрытая территория, охрана.
Рядом вся необходимая инфраструктура: детский сад, школа, метро, остановка общественного транспорта, рынок, ТЦ, супермаркет.









