Меню
ЗакрытьЛевада 2
Продажа
$28000 ≈ $608.7 / м²
Телефон менеджера
№ объекта
RE-128520
Комнат
1
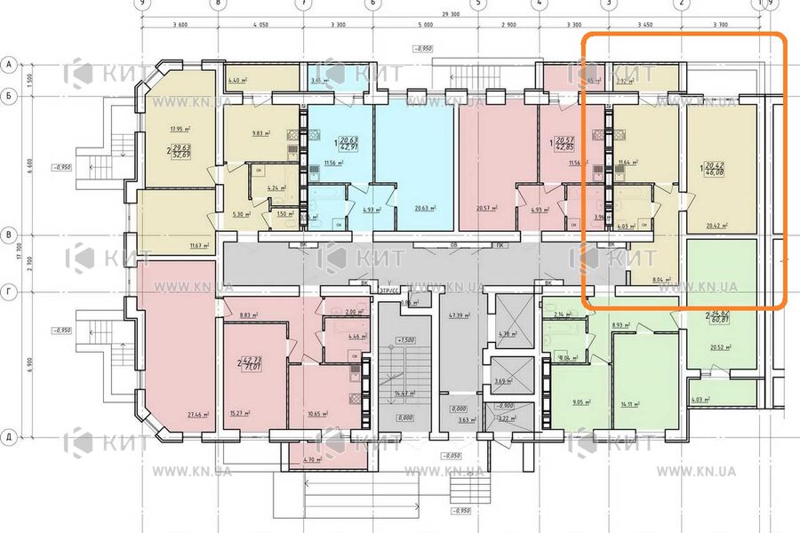
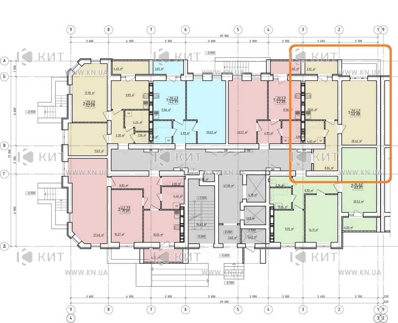
Площадь
46 / 20 / 12 м²
Город
Харьков, Харьковская обл.
Район
Гагарина
Адрес
Заливная ул., 10
Этаж
13
Этажность
16
Email
На карте
Фотогалерея Смотреть все фото
Об объекте
ДОМ СДАН! Продается 1-комнатная квартира в Новострое, ЖК "Левада", 5 минут ходьбы от м. Гагарина. 13 этаж 16 этажного кирпичного дома. Общая площадь 46 м2, жилая 20 м2, кухня 12 м2. Квартира не угловая. В доме 2 лифта (грузовой и пассажирский). Хорошая планировка с несущей стеной между кухней и комнатой, есть прихожая. Возможно сделать тамбур. Главные наши преимущества: Во всех квартирах горизонтальная разводка отопления с возможностью установки счетчика на отопление на квартиру, дом из белого кирпича, утеплен минеральной ватой и пенопластом. Рядом вся необходимая инфраструктура: метро, остановка общественного транспорта, супермаркеты, школы, детские сады, автовокзал, до центра 10 минут пешком!
















