Меню
ЗакрытьПродажа квартиры Харьков, Одесская, Основа, 93м²
Макеевская
Продажа
На карте
Фотогалерея Смотреть все фото
Об объекте
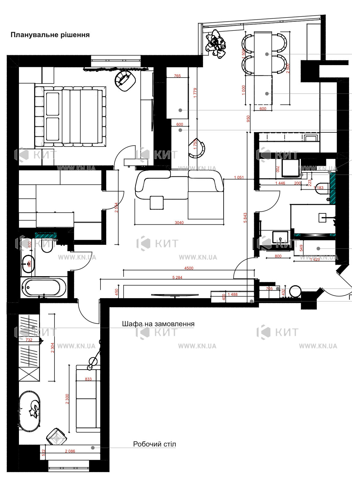
єВідновлення. Продается 3-комнатная квартира, Одесская, Основа, Качановская ул. 15, ЖК Макеевская. Общая площадь - 93 м²; 7 этаж 16-этажного дома.
Формат квартиры: кухня-гостиная, спальня, детская,2 санузела, ванная комната, душевая комната, гардероб, лоджия.
В квартире: капитальный ремонт, МПО, новые коммуникации, поменяны радиаторы, установлены термоголовки.
Установлено: счётчик на воду, счётчик на отопление.
Дополнительные бонусы: мебель, техника, холодильник, морозильная камера, посудомоечная машина, теплый пол, красивый вид из окон.
Преимущества этого дома: закрытая территория, охрана, детская площадка, зона отдыха.
Рядом вся необходимая инфраструктура: детский сад, школа, остановка общественного транспорта, рынок, ТЦ, супермаркет.






































