Меню
ЗакрытьПтичка
Продажа
$18000 ≈ $333.33 / м²
Телефон менеджера
№ объекта
RE-129735
Комнат
1
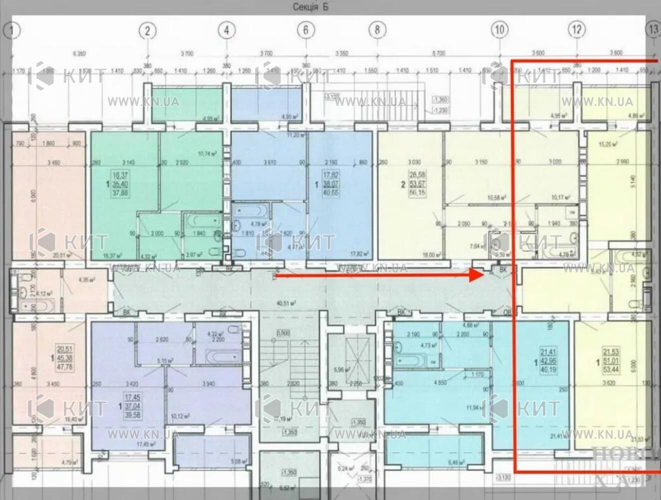
Площадь
54 / 23 / 18 м²
Город
Харьков, Харьковская обл.
Район
Салтовка(Бараб.,Украина)
Адрес
Барабашова ул., 16
Этаж
8
Этажность
9
Email
На карте
Фотогалерея Смотреть все фото
Об объекте
Доступно по программе єВідновлення. Продается 1-комнатная квартира, Салтовка, Барабашова ул. 16, м. Академика Павлова, ЖК Птичка. Общая площадь - 54 м²; 8 этаж 9-этажного дома.
Формат квартиры: кухня-гостиная, спальня, санузел, балкон.
В квартире: строительное состояние, МПО.
Преимущества этого дома: паркинг, детская площадка, зона отдыха.
Рядом вся необходимая инфраструктура: метро, остановка общественного транспорта, ТЦ, супермаркет, сквер, гидропарк.






