Продажа квартиры Харьков, Клочковская, 20м²

Ботанический сад
Воробьевы Горы на Полях
Продажа
$13000$650 / м²
Телефон менеджера

№ объекта
RE-130228
Комнат
1
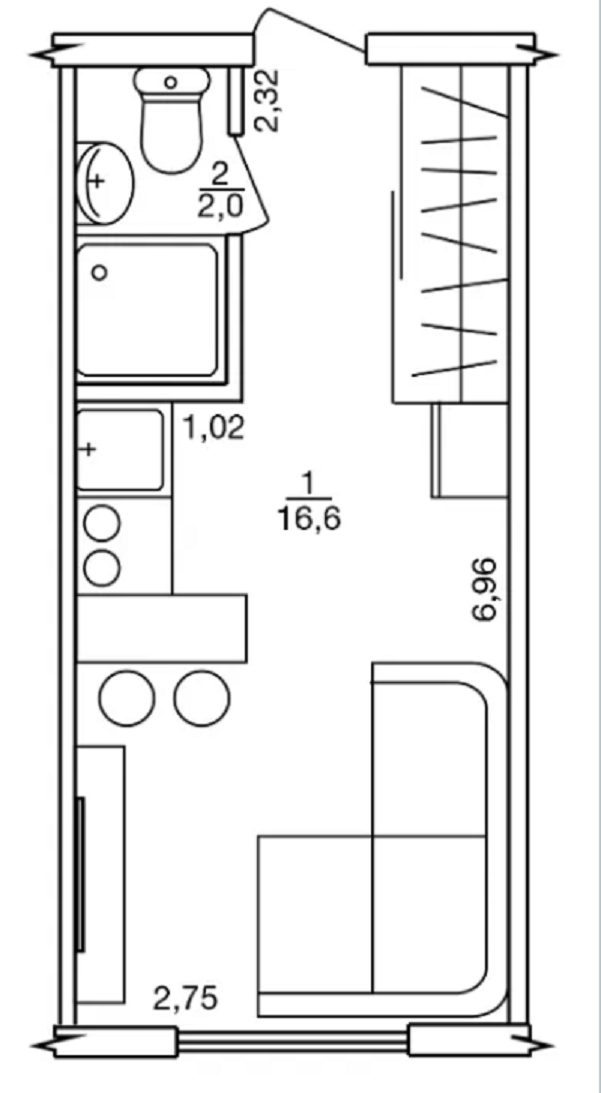
Площадь
20 / 16 / 4 м²
Город
Харьков, Харьковская обл.
Район
Клочковская
Адрес
Весёлая ул., 24
Этаж
1
Этажность
9

На карте


Об объекте

Продается 1-комнатная квартира, Клочковская, Весёлая ул. 24, м. Ботанический сад, Воробьевы Горы на Полях. Общая площадь - 20 м²; 1 этаж 9-этажного дома.
Формат квартиры: кухня-гостиная, санузел.
В квартире: капитальный ремонт, МПО, новые коммуникации.
Установлено: счётчик на воду.

Преимущества этого дома: паркинг, закрытая территория, охрана, детская площадка, собственная котельная.
Рядом вся необходимая инфраструктура: детский сад, школа, метро, остановка общественного транспорта, супермаркет.