Меню
ЗакрытьОазис
Продажа
$30000 ≈ $588.24 / м²
Телефон менеджера
№ объекта
RE-130693
Комнат
1
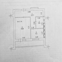
Площадь
51 / 18 / 8 м²
Город
Харьков, Харьковская обл.
Район
Салтовка(Г.Труда,Студ.)
Адрес
Непокорённых (Героев Труда) ул., 2
Этаж
16
Этажность
16
Email
На карте
Фотогалерея Смотреть все фото
Об объекте
Продается 1-комнатная квартира, Салтовка, Непокорённых (Героев Труда) ул. 2, м. Салтовская, ЖК Оазис. Общая площадь - 51 м²; 16 этаж 16-этажного дома.
Формат квартиры: кухня, спальня, санузел, балкон.
В квартире: строительное состояние, МПО, новые коммуникации, утепленный фасад.
Дополнительные бонусы: красивый вид из окон.
Преимущества этого дома: детская площадка.
Рядом вся необходимая инфраструктура: метро, остановка общественного транспорта, сквер.















