Меню
ЗакрытьВоробьевы Горы
Продажа
$14000 ≈ $700 / м²
Телефон менеджера
№ объекта
RE-130977
Комнат
1
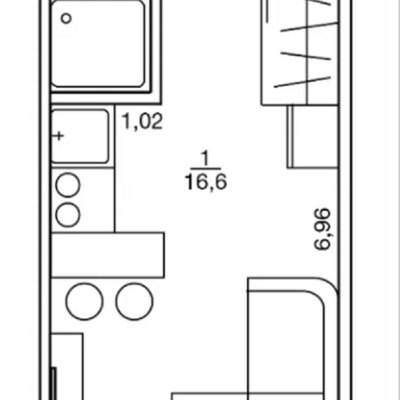
Площадь
20 / 16 / 4 м²
Город
Харьков, Харьковская обл.
Район
Салтовка(Г.Труда,Студ.)
Адрес
Шевченковский пер., 30
Этаж
2
Этажность
6
Email
На карте
Фотогалерея Смотреть все фото
Об объекте
Доступно по программе єВідновлення. Продается 1-комнатная квартира, Салтовка, Шевченковский пер. 30, м. Академика Павлова, ЖК Воробьевы Горы. Общая площадь - 20 м²; 2 этаж 6-этажного дома.
Формат квартиры: кухня-гостиная, спальня, санузел.
В квартире: капитальный ремонт, МПО, новые коммуникации.
Установлено: счётчик на воду.
Дополнительные бонусы: мебель, техника.
Преимущества этого дома: паркинг, закрытая территория, детская площадка, зона отдыха.
Рядом вся необходимая инфраструктура: метро, остановка общественного транспорта, ТЦ, супермаркет, сквер, парк, гидропарк.







