Меню
ЗакрытьСказка
Продажа
На карте
Фотогалерея Смотреть все фото
Об объекте
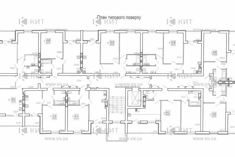
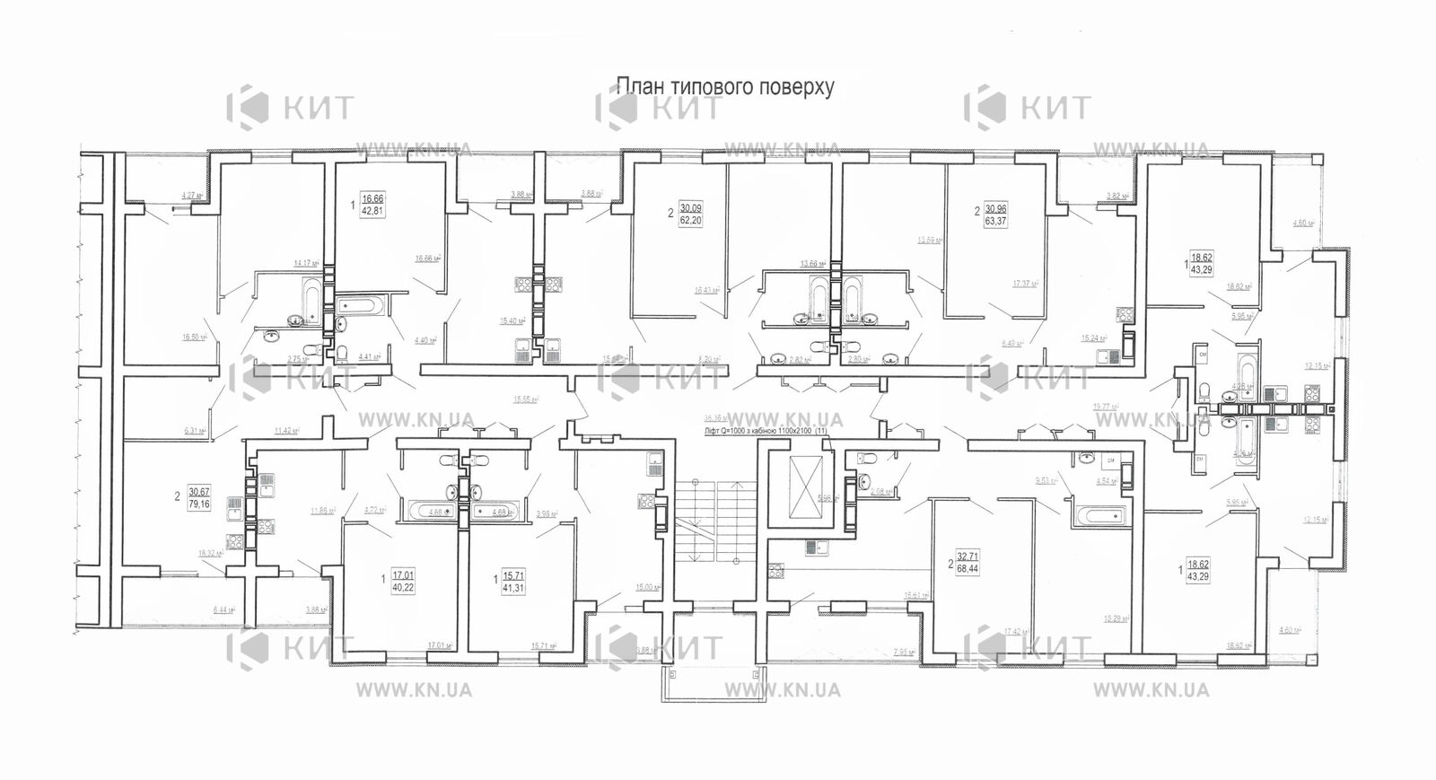
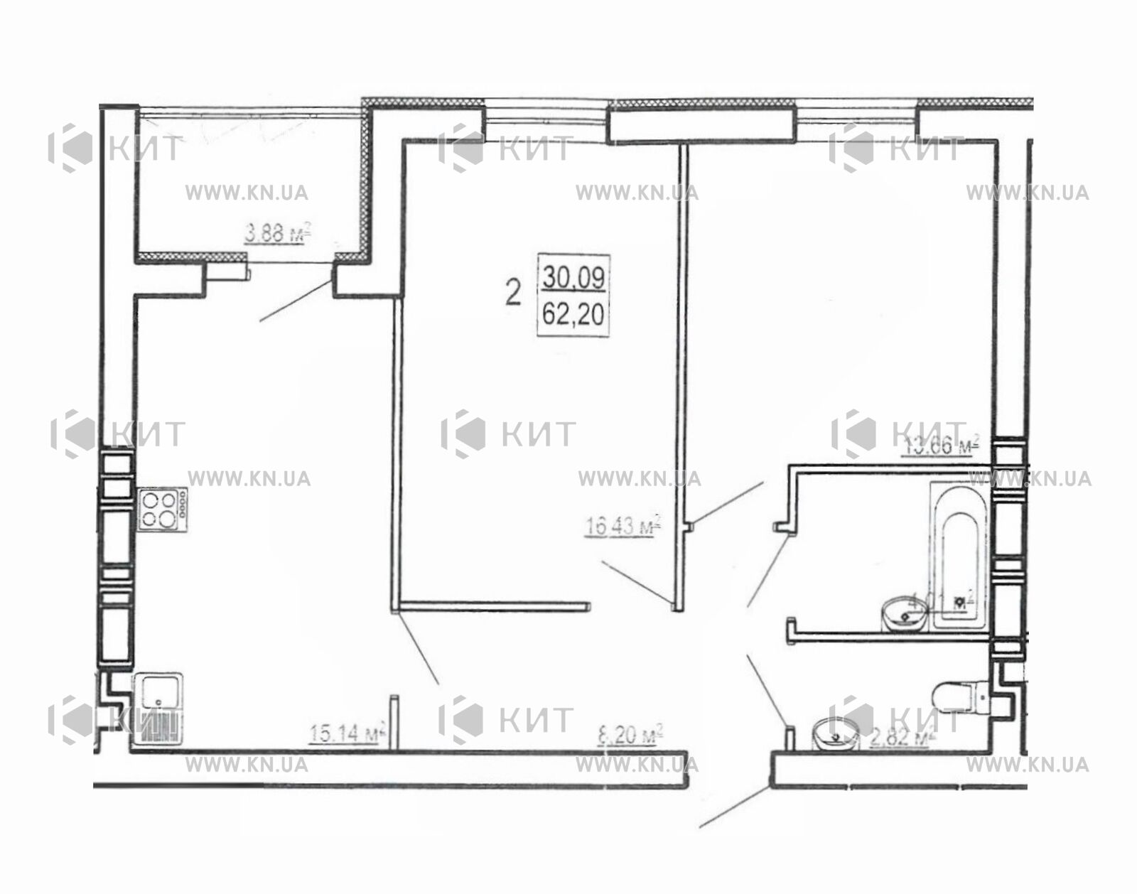
Продам 2 комнатную квартиру в новострое ЖК "Сказка" по ул. Полтавский Шлях, в пешей доступности от станции метро «Холодная Гора». Секция №10 - сдана в эксплуатацию, адрес присвоен. Квартира расположена на 5 этаже 9 этажного дома. Общая площадь квартиры 62 м2, жилая площадь 30 м2, кухня 15 м2. Квартира в строительном состоянии. Комплектация квартиры: металлическая входная дверь, МПО, радиаторы отопления, счётчик электроэнергии. Горизонтальная разводка отопления с возможностью установки счётчика тепла. Дом из белого кирпича, утеплен пенопластом и минеральной ватой. Во дворе дома детская площадка и парковка для авто. Отличная транспортная развязка. Рядом вся необходимая инфраструктура: метро, супермаркеты КЛАСС и РОСТ, рынок Сказка, школы, детские сады, остановка общественного транспорта.









