Меню
ЗакрытьВернадского
Продажа
$135000 ≈ $1000 / м²
Телефон менеджера
№ объекта
RE-62669
Комнат
4
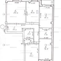
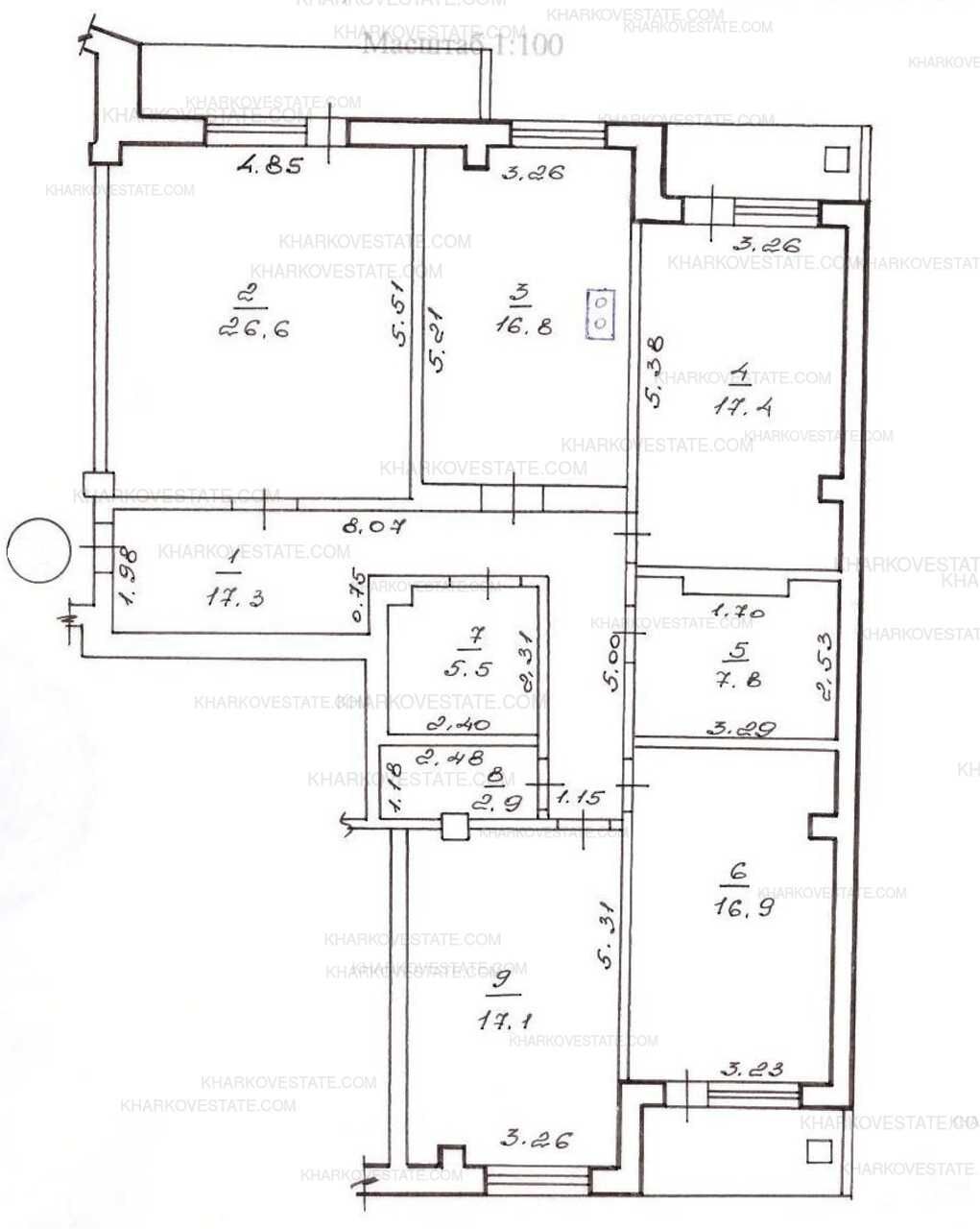
Площадь
135 / 77 / 16.8 м²
Город
Харьков, Харьковская обл.
Район
Спортивная, Гагарина, Защитников
Адрес
Вернадского ул., 1
Этаж
4
Этажность
10
Email
На карте
Фотогалерея Смотреть все фото
Об объекте
Продается 4-комнатная квартира, Спортивная, Вернадского ул. 1, м. Левада, Вернадского. Общая площадь - 135 м²; 4 этаж 10-этажного дома.



















