Меню
ЗакритиТитул
Продаж
На мапі
Фотогалерея Дивитися всі фото
Про об'єкт
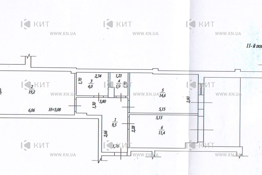
Продам реальну 2-кімнатну квартиру в зданому будинку в Центрі в престижній новобудові преміум класу ЖК Титул по вулиці Свободи (Іванова), метро Пушкінська, Університет або Архітектора Бекетова 5 хвилин. Квартира знаходиться на 11 поверсі 12-поверхового будинку. Загальна площа – 79м2, житлова – 34м2, кухня-11.4м2. Квартира під дизайнерський проект вашої мрії.
При будівництві використовували лише чисті матеріали преміальної якості (енергоефективних керамічних блоків Кератерм), панорамні вікна від компанії Модерн, встановлені швидкісні ліфти німецької фірми Wittur, преміальні труби системи опалення KAN-therm. з оцинкованої сталі каналізаційні труби із шумоізоляцією, радіатори Kermi Австрія. Будинок отримав сертифікат енергоефективності класу В.
Тихий у затишний внутрішній двір без машин із виходом на вулицю Свободи та вулицю Пушкінську. Є підземний паркінг. Документи на руках !
Поруч вся необхідна інфраструктура: дитячі садки, школи, університети, парк, супермаркети.
Центр, м. Університет (м. Университет), ЖК Тітул (ЖК Титул), м. Пушкінська (м.Пушкинская), м. Архітектора Бекетова (м. Архитектора Бекетова)

























