Меню
ЗакритиДикси
Продаж
$22000 ≈ $687.5 / м²
Телефон менеджера
№ объекту
RE-126156
Кімнат
1
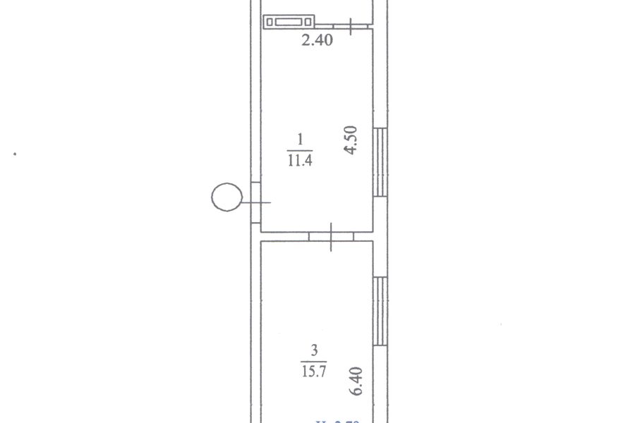
Площа
32 / 16 / 11 м²
Місто
Харків, Харківська обл.
Район
Наукова
Адреса
Спецпідрозділу Кракен (Серпова) вул., 4А
Поверх
8
Поверхів
12
Email
На мапі
Фотогалерея Дивитися всі фото
Про об'єкт
Продам 1-кімнатну квартиру в Центрі, в новобудові ЖК Dixie, метро Наукова 3 хвилини. Квартира розташована на 8 поверсі 12 поверхового будинку. Загальна площа – 32 м2, житлова площа – 16 м2, кухня – 11 м2. Будинок зданий, отримані документи, що встановлюють право власності. У квартирі виконані чернові роботи: розведення електрики, оштукатурені стіни, стяжка підлоги. Горизонтальне розведення опалення, з можливістю встановлення лічильника опалення. Поруч вся необхідна інфраструктура: дитячі садки, школи, супермаркети, аптеки, парки, ВНЗ. Відмінний варіант як для комфортного життя, так і дорогої оренди. м. Наукова (м. Научная), ЖК Dixie, Коломенська (Коломенская), Культури (Культуры), проспект Науки.












