Меню
ЗакритиЛевада 2
Продаж
На мапі
Фотогалерея Дивитися всі фото
Про об'єкт
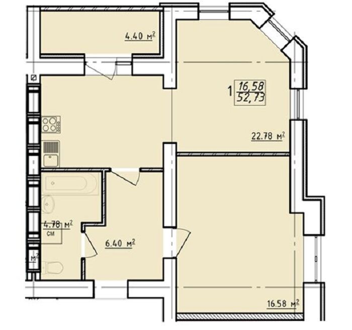
Продається 1-кімнатна квартира в Новострої, ЖК "Левада", 5 хвилин ходьби від м. Гагаріна. Будинок здано, комунікації підключено, вже роблять ремонт. 15 поверх 16 поверхового будинку. У домі 2 ліфта (вантажний і пасажирський). Загальна площа 57 м, жила 16 м, кухня 23 м. Капітальний ремонт виконаний на 90%. Підлога на кухні в коридорі та кімнатах - кварц вініл,сан. вузол - плитка керамограніт, стіни - фінішна шпаклівка стін під фарбування. Встановлено бойлер, міжкімнатні двері прихованого монтажу, є лічильник на опалення. Одна з найкращих планувань у комплексах: компактна квартира з можливістю перепланування. Також можна зробити тамбур. Головні наші переваги: Будинок знаходиться в 10 хвилинах ходьби від метро пр. Гагаріна, у всіх квартирах горизонтальна розводка опалення з можливістю установки лічильника на опалення на квартиру, будинок з білої цегли, утеплений мінеральною ватою і пінопластом. Поруч вся необхідна інфраструктура: метро, зупинка громадського транспорту, супермаркети, школи, дитячі садки, автовокзал, до центру 10 хвилин пішки!
Основ`янський район (Основянский район), Центр, Гагаріна (Гагарина), Левада, вул. Лисаветинська (ул. Елизаветинская), вул. Заливна (Заливная), АТБ, КЛАСС, Центр.































