Меню
ЗакритиСпутник
Продаж
$57000 ≈ $703.7 / м²
Телефон менеджера
№ объекту
RE-127563
Кімнат
2
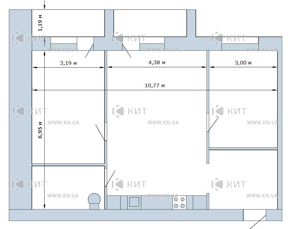
Площа
81 / 37 / 30 м²
Місто
Харків, Харківська обл.
Район
Салтівка(Бараб.,Україна)
Адреса
Василя Стуса (Механізаторська) вул., 21
Поверх
2
Поверхів
10
Email
На мапі
Фотогалерея Дивитися всі фото
Про об'єкт
Продається 2-кімнатна квартира, Салтівка, 616 мрн., Василя Стуса (Механізаторська) вул., м. Академіка Павлова, ЖК Супутник. Загальна площа - 81 м²; 2 поверх 10-поверхового будинку.
Формат квартири: кухня-вітальня, спальня, дитяча, санвузол, балкон / 2 шт.
У квартирі: будівельний стан, МПВ, утеплений фасад.
Поруч уся необхідна інфраструктура: дитячий садок, школа, метро, ринок, супермаркет.














