Меню
ЗакритиПролicок
Продаж
$72000 ≈ $765.96 / м²
Телефон менеджера
№ объекту
RE-127644
Кімнат
3
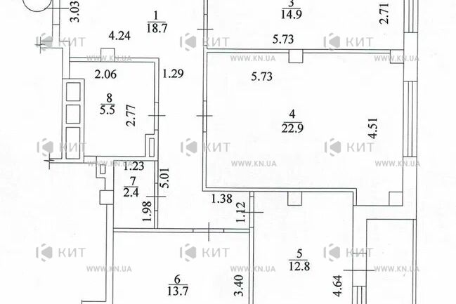
Площа
94 / 50 / 15 м²
Місто
Харків, Харківська обл.
Район
Нові Дома
Адреса
Героїв Харкова (Московський) пр., 158
Поверх
13
Поверхів
14
Email
На мапі
Фотогалерея Дивитися всі фото
Про об'єкт
Продам 3-кімнатну квартиру на Нових домах в, ЖК "Пролісок" на 13 поверсі 14типоверхового будинку. Загальна площа -94м2, житлова -50м2, кухня -15м2. Будинок 2, секція 1. Квартира в будівельному стані. Вікна металопластикові, радіатори біметал, горизонтальна розводка опалення, залізні вхідні двері. Біля будинку супермаркети, ринок, школи і дитячий сад. Дуже зручна транспортна розв'язка.














