Продаж квартири Харків, Нові Дома, 70м²

Палац Cпорту
Пролicок
Продаж
$77000$1100 / м²
Телефон менеджера

№ объекту
RE-128169
Кімнат
2
Площа
70 / 33 / 20 м²
Місто
Харків, Харківська обл.
Район
Нові Дома
Адреса
Героїв Харкова (Московський) пр., 158
Поверх
11
Поверхів
14

На мапі


Про об'єкт

Працюємо з СЕРТИФІКАТАМИ!!!
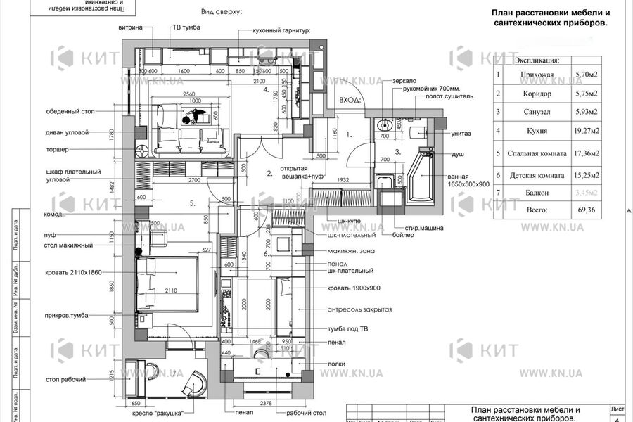
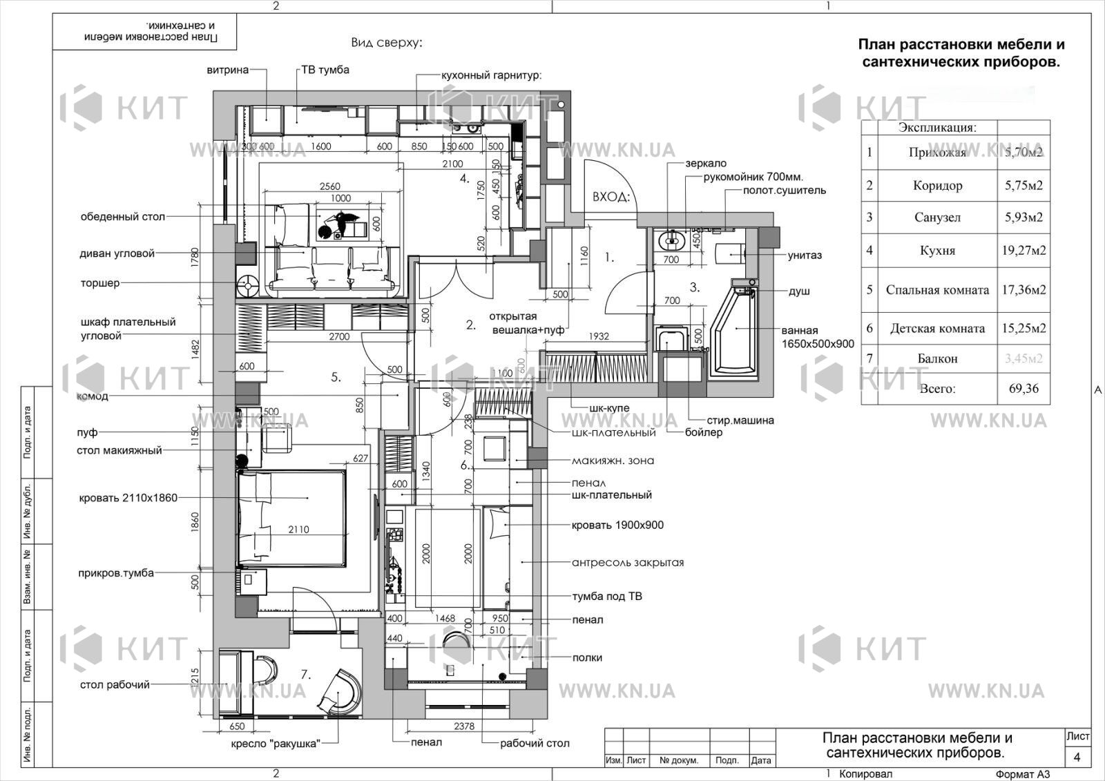
Продам 2-кімнатну квартиру в новобудові на Нових домах в ЖК "Пролісок" на 11 поверсі 14-поверхового будинку. Загальна площа -70м2, житлова -33м2, кухня -20м2. Рідкісне планування - двостороння. Формат квартири: кухня-вітальня та 2 спальні, великий санвузол. У квартирі виконано ремонт із якісних матеріалів. Вхідні двері Straj, радіатори Royal termo, дизайнерський радіатор у спальні, встановлений 1 кондиціонер, бойлер, кухонні меблі. Додатково до комплектації квартири є: диван у вітальню, ліжко в дитячу, духова шафа, пральна машина, раковина на кухню з кам'яним покриттям і змішувач, умивальник в санвузол Jacob Delafon. Решту меблів і техніки можна доукомплектувати на свій смак. ЖК має свою прибудинкову територію, дитячі майданчики, відеоспостереження, консьєрж-сервіс. Прекрасний вид з вікон. Район з дуже розвиненою інфраструктурою, поряд школа, дитячий садок, ринок, супермаркети АТБ, РОСТ, парк, кінотеатр. Є комора 6,2м2 у сусідньому будинку, продається окремо -4650$.