Продаж квартири Харків, Сокільники, 80м²

Ботанічний сад
Сокольники
Продаж
$79000$987.5 / м²
Телефон менеджера

№ объекту
RE-129031
Кімнат
2
Площа
80 / 45 / 10 м²
Місто
Харків, Харківська обл.
Район
Сокільники
Адреса
Професорська вул., 12
Поверх
15
Поверхів
16

На мапі


Про об'єкт

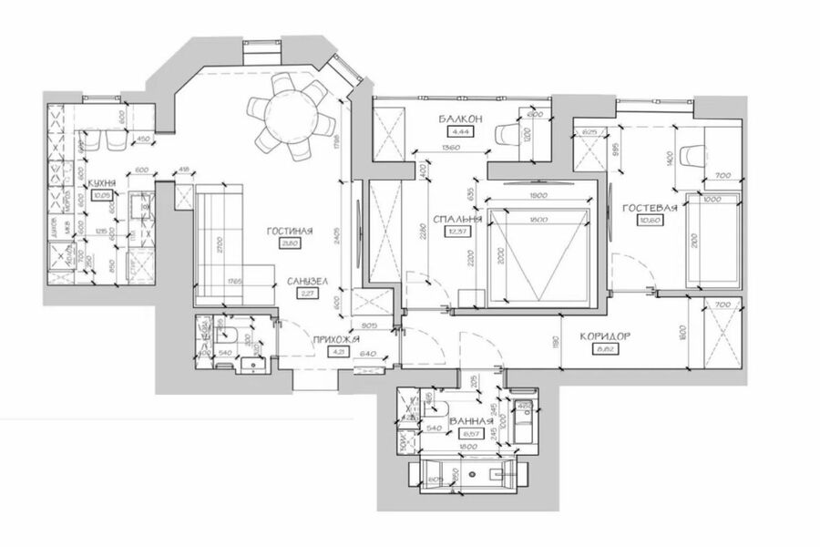
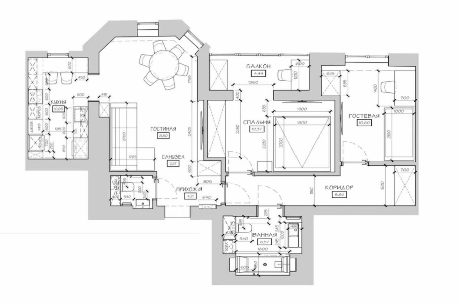
Продам реальну 3-кімнатну квартиру в новобудові ЖК "Сокольники", Центр, Павлове Поле. Квартира знаходиться на 15-му поверсі 16-поверхового будинку. Загальна площа – 80 м2.
Формат квартири:
- 2 ізольовані кімнати: спальня та дитяча
- Простора гостина
- Кухня з обідньою зоною
- 2 санвузли
- Місце під гардеробну.
У квартирі виконано новий дизайнерський ремонт з використанням найякісніших матеріалів:
- Тепла підлога в 6 зонах
- Якісна сантехніка (Grohe, Bossini)
- Звукоізоляція
- Фільтр на воду на вході у квартиру
- Індивідуальний лічильник опалення
- Сучасне електрика: щиток на 40 автоматів, можливість керування зонами освітлення та групами розеток
- Виводи під кондиціонери у кожній кімнаті.
Залишаються всі меблі та техніка.
Поруч вся необхідна інфраструктура: зупинка громадського транспорту, супермаркети, школи, дитячі садки.