Меню
ЗакритиЛуч
Продаж
$33000 ≈ $702.13 / м²
Телефон менеджера
№ объекту
RE-130233
Кімнат
1
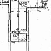
Площа
47 / 19 / 10 м²
Місто
Харків, Харківська обл.
Район
Малишева
Адреса
Героїв Харкова (Московський) пр., 195
Поверх
15
Поверхів
16
Email
На мапі
Фотогалерея Дивитися всі фото
Про об'єкт
Продам 1 кімн. квартиру за 7 хвилин ходьби від м. Малишева. 15/16 поверх. Загальна площа 47 м2, жила 19 м2, кухня 10 м2. У квартирі 2 балкони. Одне з найкращих планувань у комплексі. Житловий комплекс розташований у прицентровій частині міста, що на Московському проспекті. Комплекс складається з 3-х 16-ти поверхових цегляних будинків, виконаних за індивідуальним проектом. У 10-ти хвилинах ходьби від житлового комплексу знаходиться зупинка громадського транспорту та станція метро ім. Малишева. Також
в пішої доступності знаходяться всі необхідні елементи соціальної інфраструктури: державний дитячий сад, приватний дитячий садок, школа №
94, міська клінічна лікарня № 2, сквер "Дружби народів", супермаркет «Рост».













