Меню
ЗакритиЛевада 2
Продаж
На мапі
Фотогалерея Дивитися всі фото
Про об'єкт
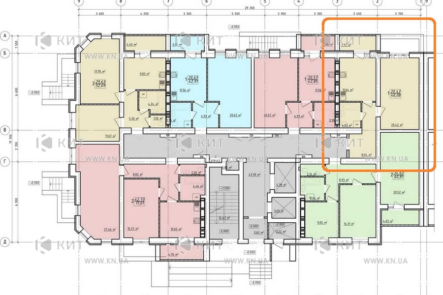
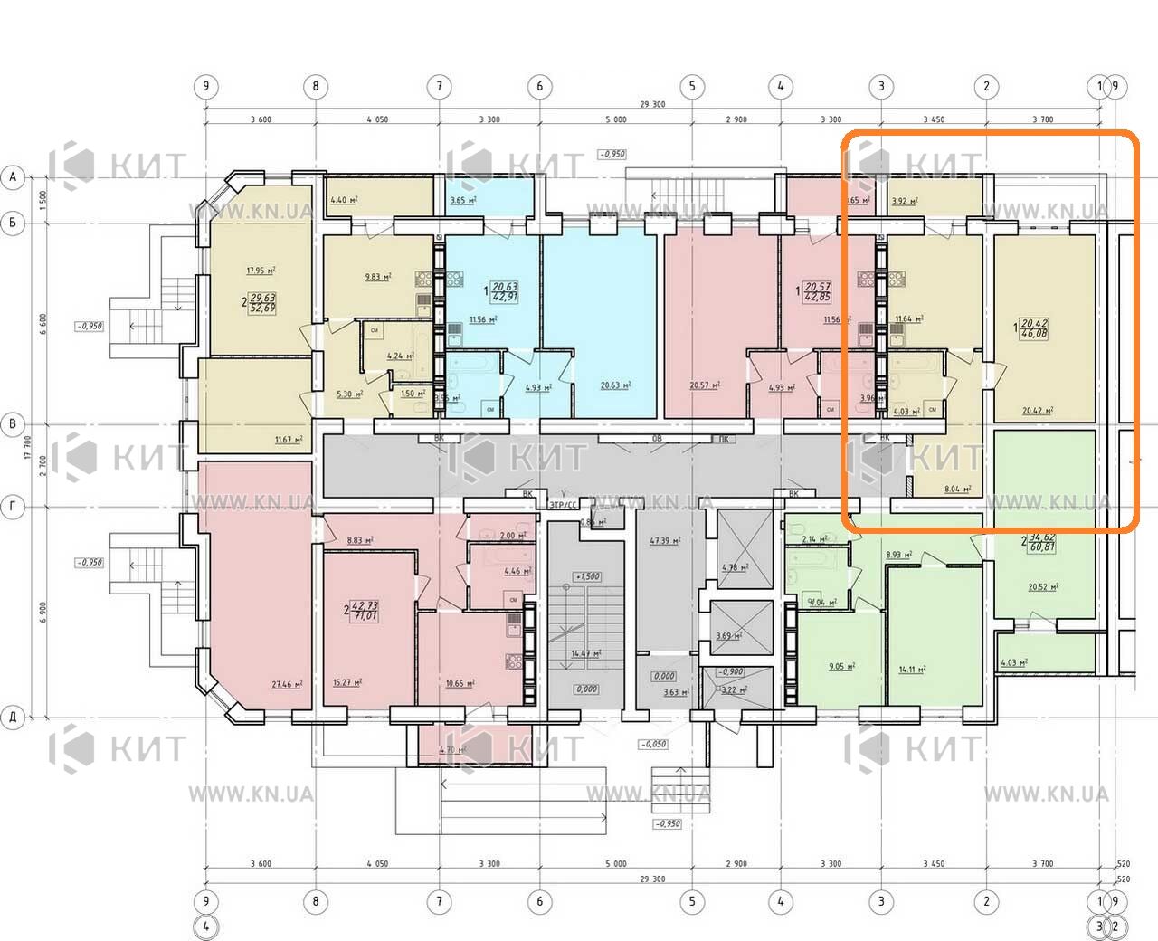
БУДИНОК ЗДАНО! Продається 1-кімнатна квартира в Новобудові, ЖК "Левада", 5 хвилин ходьби від Гагаріна. 7 поверх 12 поверхового цегляного будинку. Загальна площа 46 м2, житлова 20 м2, кухня 12 м2. Квартира не кутова. У будинку 2 ліфти (вантажний та пасажирський). Хороше планування з стіною, що несе між кухнею і кімнатою, є передпокій. Можна зробити тамбур. Основні наші переваги: У всіх квартирах горизонтальної розводки опалення з можливістю встановлення рахунку на опаленні квартири, будинку з білого кирпича, утепленого мінеральною ватою та пінопластом. Потрібна вся необхідна інфраструктура: метро, зупинка громадського транспорту, супермаркети, школи, дитячі сади, автовокзал, до центру 10 хвилин пішки!
Основ'янський район (Основянский), метро Гагаріна (Гагарина), Майдан конституції (Площадь конституции), Історичний музей (Исторический музей), Левада, вул. Заливна (Заливная), Класс, АТБ.
















