Меню
ЗакритиЛевада 2
Продаж
$29000 ≈ $630.43 / м²
Телефон менеджера
№ объекту
RE-130451
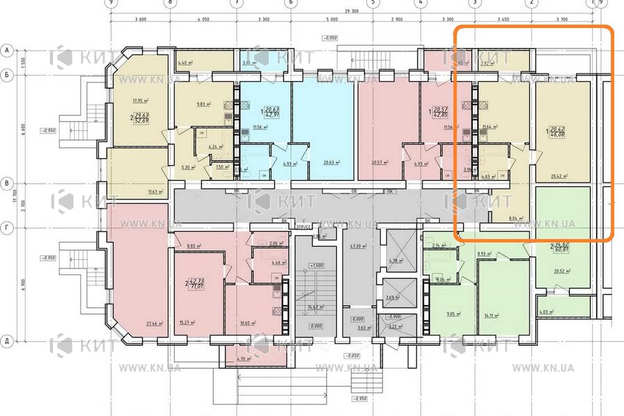
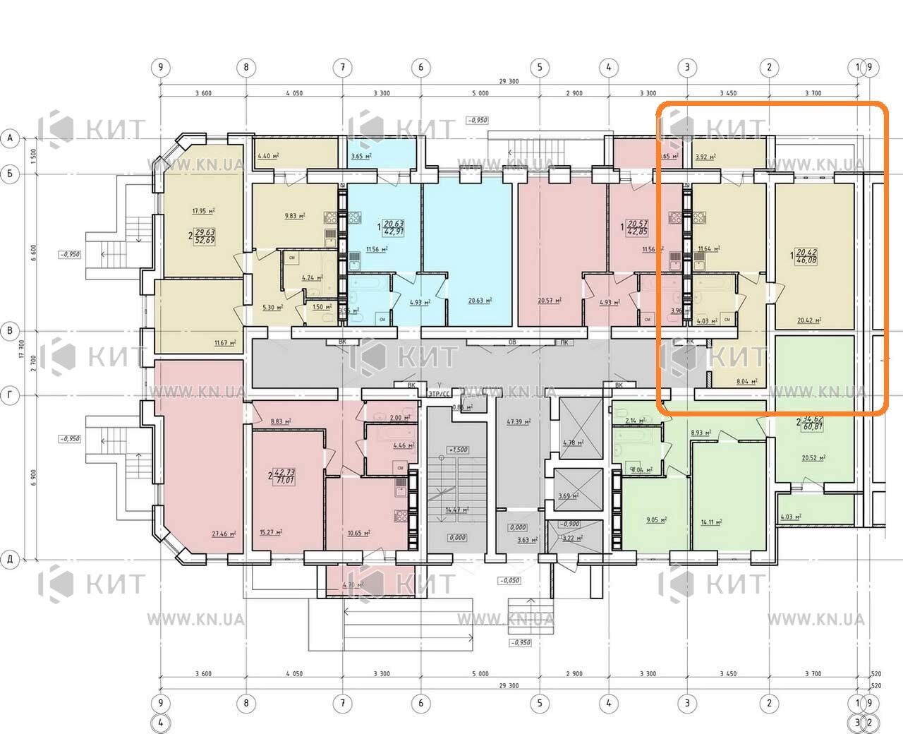
Кімнат
1
Площа
46 / 20 / 12 м²
Місто
Харків, Харківська обл.
Район
Гагаріна
Адреса
Заливна вул., 12
Поверх
1
Поверхів
16
Email
На мапі
Фотогалерея Дивитися всі фото
Про об'єкт
Доступно за програмою єВідновлення. Продається 1-кімнатна квартира, Гагаріна, Заливна вул. 12, м. Левада, Левада 2. Загальна площа - 46 м²; 1 поверх 16-поверхового будинку.
















