Меню
ЗакритиЛевада 2
Продаж
$52000 ≈ $722.22 / м²
Телефон менеджера
№ объекту
RE-130599
Кімнат
2
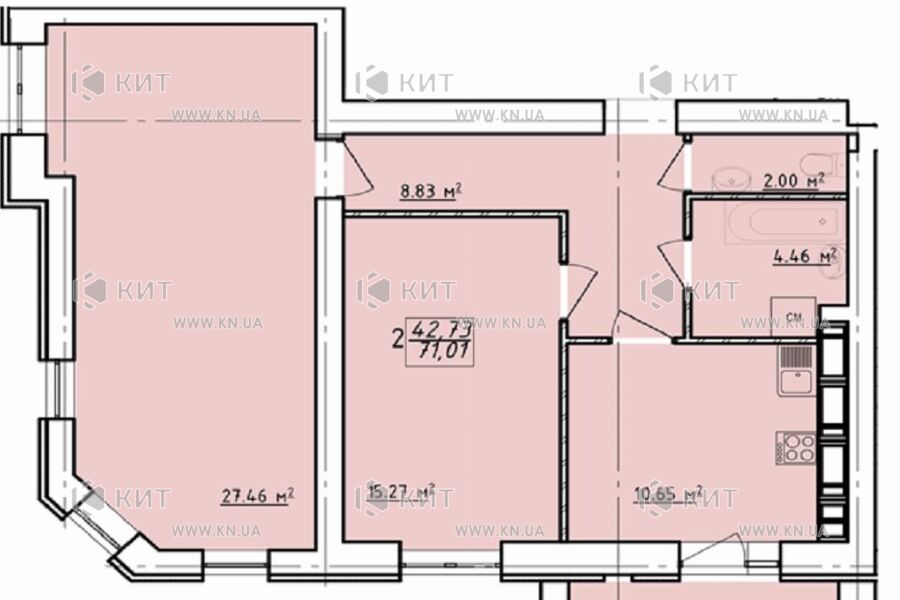
Площа
72 / 42.73 / 10.65 м²
Місто
Харків, Харківська обл.
Район
Гагаріна
Адреса
Заливна вул., 4
Поверх
12
Поверхів
16
Email
На мапі
Фотогалерея Дивитися всі фото
Про об'єкт
Доступно за програмою єВідновлення. Продається 2-кімнатна квартира, Гагаріна, Заливна вул. 2, м. Левада, Левада 2. Загальна площа - 72 м²; 12 поверх 16-поверхового будинку.





