Меню
ЗакритиРезиденция
Продаж
На мапі
Фотогалерея Дивитися всі фото
Про об'єкт
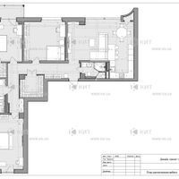
Продається 4-кімнатна квартира, Наукова, Європейська (Новгородська) вул. 46, м. Ботанічний сад, Резиденція. Загальна площа - 140 м²; 6 поверх 9-поверхового будинку.
Формат квартири: кухня-вітальня, спальня, майстер-спальня, дитяча, санвузол, ванна кімната, гардероб, балкон / 2 шт.
У квартирі: чорнові роботи, нові комунікації.
Встановлено: лічильник на воду, лічильник на опалення.
Додаткові бонуси: панорамний вид.
У квартирі виконано капітальний ремонт за індивідуальним проектом на 60 відсотків, всі необхідні матеріали, щоб закінчити ремонт, залишаються, а саме: керамограніт, паркетна дошка, сантехніка.
Переваги цього будинку: підземний паркінг, закрита територія, охорона, консьєрж-сервіс, дитячий майданчик, власна котельня, зона відпочинку.
Поруч уся необхідна інфраструктура: дитячий садок, школа, метро, ТЦ, парк “Центральний”, Саржин Яр.



















































