Меню
ЗакритиПродаж квартири Харків, ХТЗ, Рогань, 76м²
Мира 2
Продаж
$39500 ≈ $519.74 / м²
Телефон менеджера
№ объекту
RE-130754
Кімнат
3
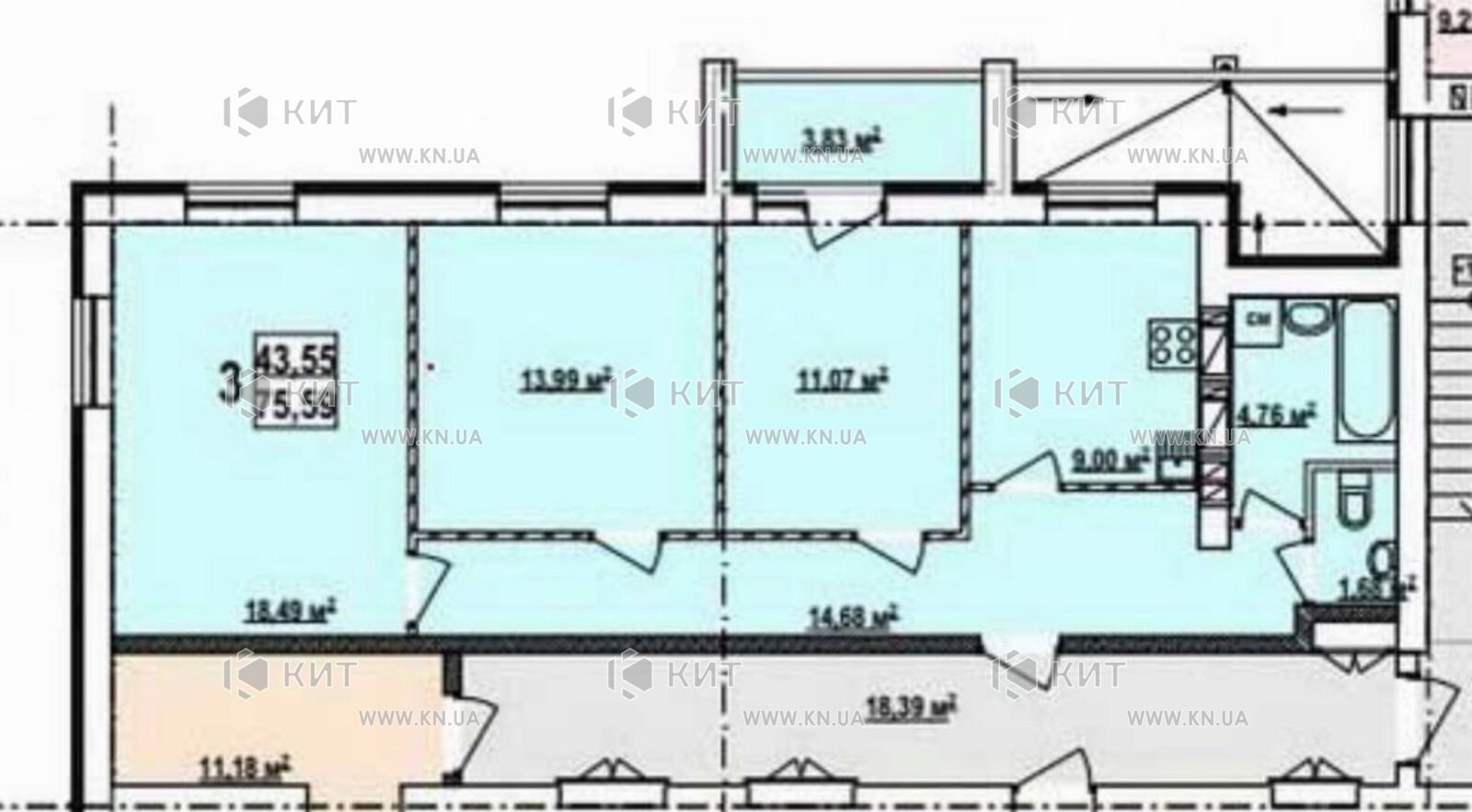
Площа
76 / 45 / 9 м²
Місто
Харків, Харківська обл.
Район
ХТЗ, Рогань
Адреса
Миру вул., 31
Поверх
9
Поверхів
9
Email
На мапі
Фотогалерея Дивитися всі фото
Про об'єкт
Доступно за програмою єВідновлення. Продається 3-кімнатна квартира, Миру вул. 31, ЖК Миру 2. Загальна площа - 76 м²; 9 поверх 9-поверхового будинку.
Формат квартири: кухня, спальня, гостьова спальня, дитяча, санвузол, ванна кімната, балкон.
У квартирі: будівельний стан, МПВ.
Додаткові бонуси: гарний краєвид.
Переваги цього будинку: дитячий майданчик, бомбосховище.
Поруч уся необхідна інфраструктура: дитячий садок, школа, метро, зупинка громадського транспорту, ринок, супермаркет, сквер.











