Меню
ЗакритиСказка
Продаж
На мапі
Фотогалерея Дивитися всі фото
Про об'єкт
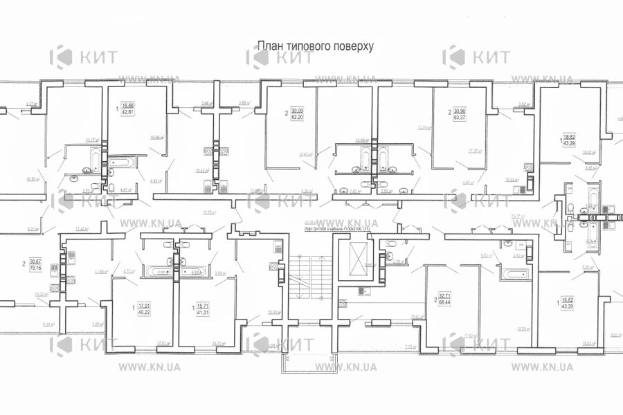
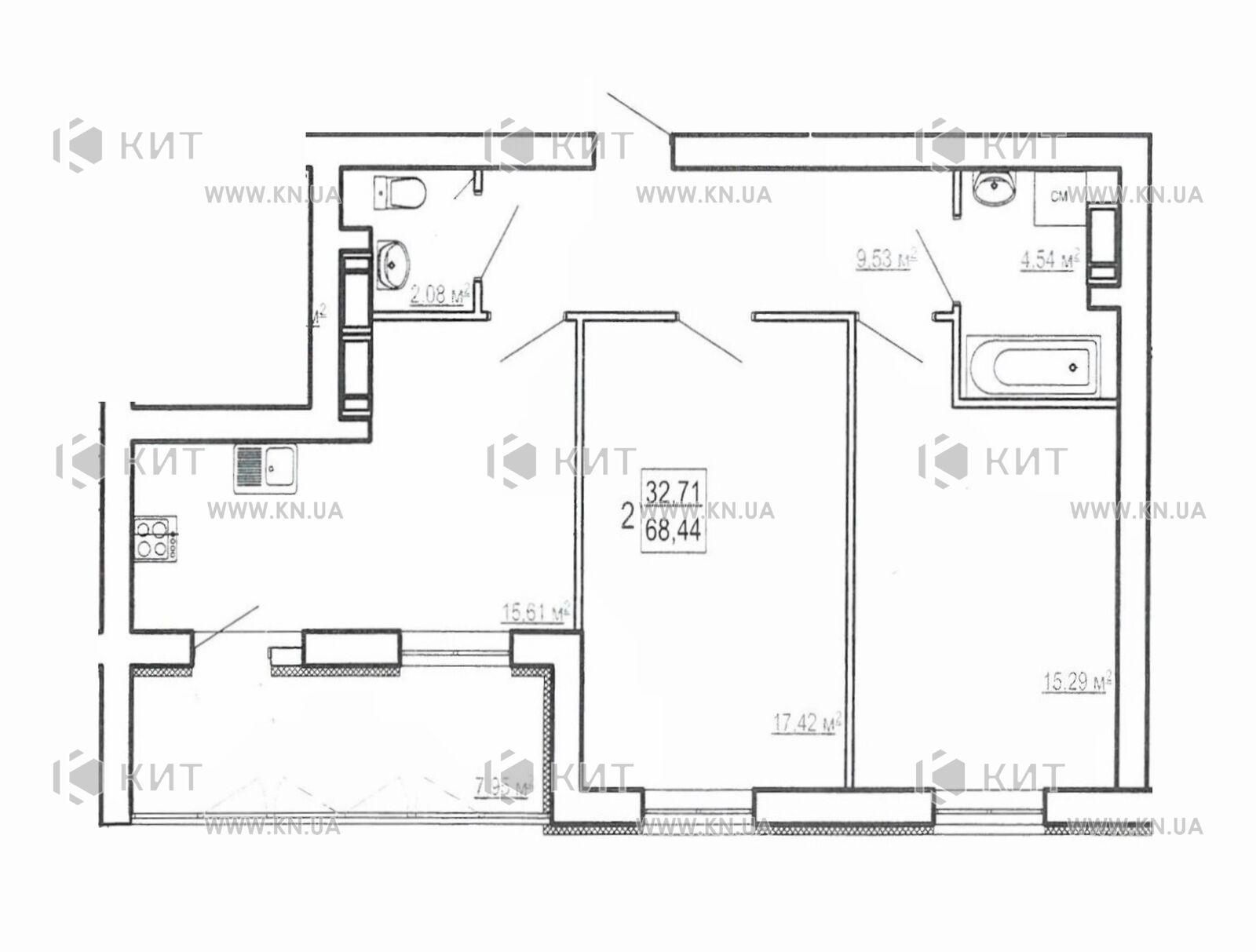
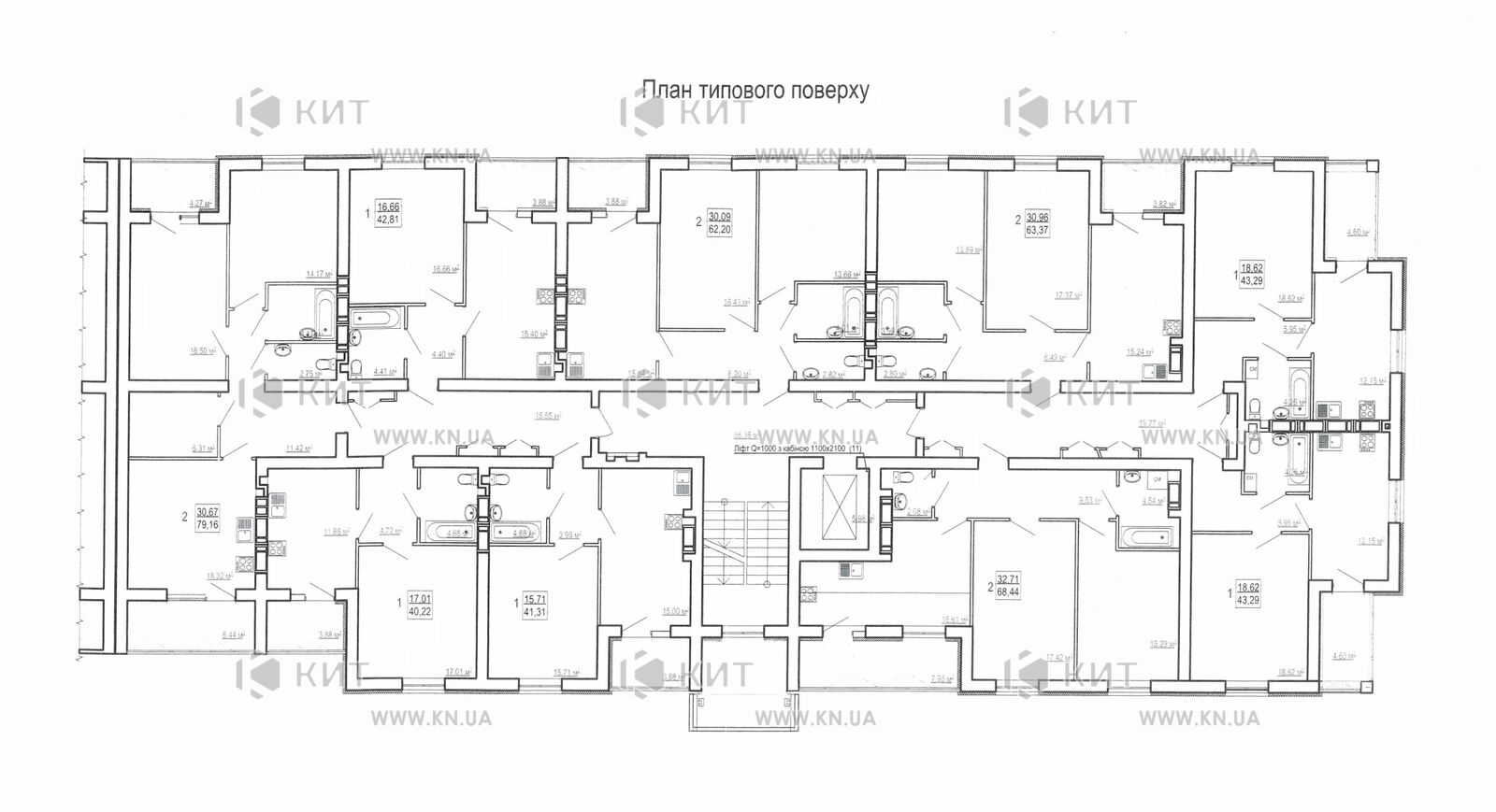
Продаю 2-кімнатну квартиру в новобудові ЖК «Казка» по вул. Полтавський Шлях, у пішій доступності від станції метро «Холодна Гора». Секція №10 — здана в експлуатацію, адреса присвоєна. Квартира розташована на 8-му поверсі 9-поверхового будинку. Загальна площа квартири 68 м2, житлова площа 32 м2, кухня 16 м2. У квартирі незавершений капітальний ремонт, виконані наступні роботи: розводка електрики та встановлення автоматів, стяжка, штукатурка, встановлено вікно на балконі, розведені комунікації водопостачання та водовідведення, зроблено розводку водяної системи підігріву підлоги та встановлено електрокотел для резервного опалення квартири, покладено плитку у санвузлі та на балконі, встановлено ванну, встановлено вхідні двері, зроблено виводи під кондиціонер. У будинку горизонтальна розводка опалення з можливістю встановлення лічильника тепла. Будинок з білої цегли, утеплений пінопластом і мінеральною ватою. У дворі будинку дитячий майданчик і парковка для авто. Відмінна транспортна розв'язка. Поруч вся необхідна інфраструктура: метро, супермаркети КЛАС і РОСТ, ринок Сказка, школи, дитячі садки, зупинка громадського транспорту. ЖК Казка (ЖК Сказка), м. Холодна Гора (м. Холодная гора), Полтавський Шлях (Полтавский Шлях).











