Меню
ЗакритиПродаж квартири Харків, Київська, Гідропарк, 50.7м²
Продаж
$35000 ≈ $690.34 / м²
Телефон менеджера
№ объекту
RE-132372
Кімнат
2
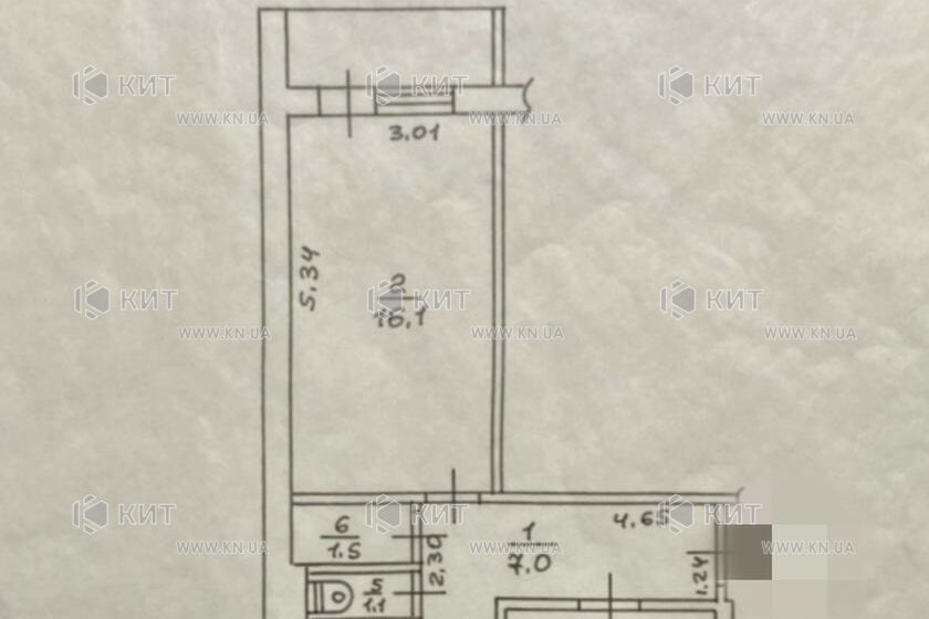
Площа
50.7 / 39 / 7 м²
Місто
Харків, Харківська обл.
Район
Київська, Гідропарк
Адреса
Індустріальний (Фрунзе) пр., 55а
Поверх
1
Поверхів
9
Email
На мапі
Фотогалерея Дивитися всі фото
Про об'єкт
Продається 2-кімнатна квартира, Київська, Гідропарк, Індустріальний (Фрунзе) пр. 55а. Загальна площа - 50.7 м²; 1 поверх 9-поверхового будинку.
Формат квартири: кухня, спальня, гостьова спальня, санвузол, балкон.
Додаткові бонуси: меблі, техніка.
Переваги цього будинку: дитячий майданчик.
Поруч уся необхідна інфраструктура: дитячий садок, школа, метро, зупинка громадського транспорту, ринок, ТЦ, супермаркет, парк.










