Меню
ЗакритиПродаж
$39000 ≈ $975 / м²
Телефон менеджера
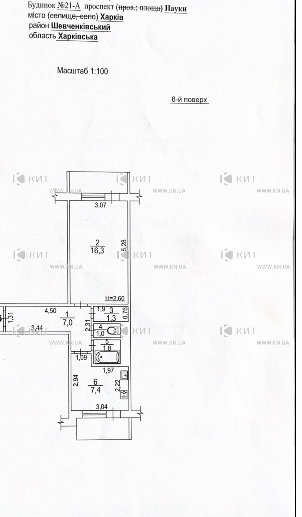
№ объекту
RE-132842
Кімнат
1
Площа
40 / 16 / 7 м²
Місто
Харків, Харківська обл.
Район
Наукова
Адреса
Науки (Леніна) пр., 21А
Поверх
8
Поверхів
9
Email
На мапі
Фотогалерея Дивитися всі фото
Про об'єкт
Доступно за програмою єВідновлення, програми для військових. Продається 1-кімнатна квартира, Наукова, Науки (Леніна) пр. 21А, м. Наукова. Загальна площа - 40 м²; 8 поверх 9-поверхового будинку.
Формат квартири: кухня, вітальня, санвузол, балкон / 2 шт.
У квартирі: житловий стан, МПВ, нові комунікації, інтернет.
Додаткові бонуси: меблі, техніка.
Переваги цього будинку: дитячий майданчик.
Поруч уся необхідна інфраструктура: дитячий садок, школа, метро, супермаркет, парк “Центральний”, Саржин Яр.














