Меню
ЗакритиПтичка
Продаж
$18000 ≈ $418.6 / м²
Телефон менеджера
№ объекту
RE-132910
Кімнат
1
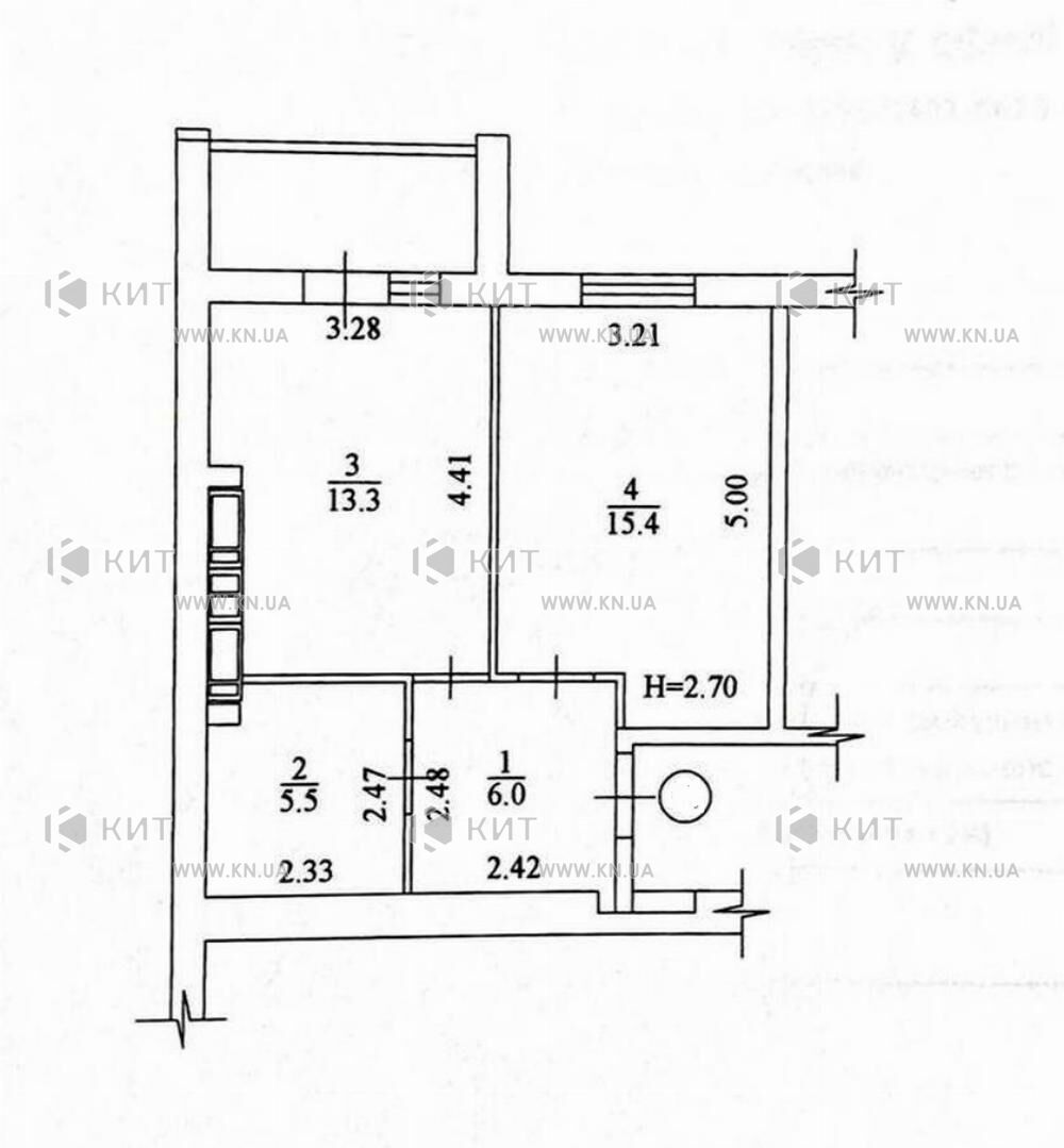
Площа
43 / 20 / 13 м²
Місто
Харків, Харківська обл.
Район
Салтівка(Бараб.,Україна)
Адреса
Барабашова вул., 14Б
Поверх
3
Поверхів
9
Email
На мапі
Фотогалерея Дивитися всі фото
Про об'єкт
Доступно за програмою єВідновлення, програми для військових. Продається 1-кімнатна квартира, Салтівка(Бараб.,Україна), Барабашова вул. 14Б, м. Академіка Павлова, ЖК Пташка. Загальна площа - 43 м²; 3 поверх 9-поверхового будинку.
Формат квартири: кухня-вітальня, спальня, санвузол.
У квартирі: будівельний стан, МПВ.
Поруч уся необхідна інфраструктура: метро, зупинка громадського транспорту, ринок, ТЦ, супермаркет, сквер, гідропарк.



