Меню
ЗакритиПродаж будинку Дергачі, Дергачі, 144м²
Продаж
На мапі
Фотогалерея Дивитися всі фото
Про об'єкт
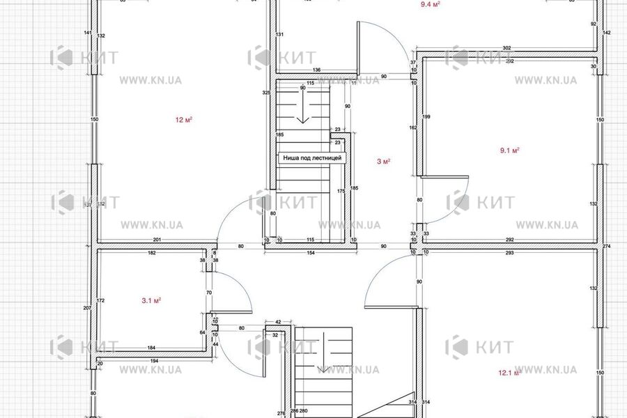
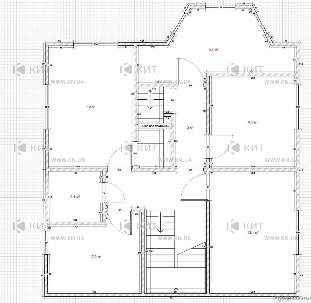
Продам новий двоповерховий будинок у найближчому передмісті Харкова – у Дергачах, загальною площею 144 м2, приватизована ділянка 10 соток.
Будинок збудований у 2020 році з газоблоку, утеплений, перекриття - залізничне, дах - металочерепиця.
Планування: 1-й поверх: кухня - вітальня, кабінет, топкова з/в;
2-й поверх: 3 спальні, 2 з/в.
Комунікації: опалення – електричне, світло 380 Вт, 10 кВт, вода – свердловина, каналізація – септик.
Виготовлено розведення електрики, встановлено сантехніку, розведено опалення, встановлено електрокотел.
Будинок відштукатурений, зроблена чистова стяжка на 2-х поверхах, розведення під кондиціонери на двох поверхах, 2 металеві драбини з першого на другий і з другого на горище, вікна veka 5 камер.
Ділянка кутова, по периметру обгороджена європарканом, асфальтований під'їзд. Поруч знаходяться будинки сучасної споруди.































